Novos Apartamentos de Luxo, Junto à Avenida da Liberdade
Apartamentos T4 e T5 a partir de 864.500€
Acabamentos de elevada qualidade e elevador
PISO 0 | T4 | 129,15 m2
-
4 Quartos
15,75 m2 | 11,00 m2 | 8,76 m2 | 8,40 m2
3 Casas de Banho
4,55 m2 | 3,40 m2 | 3,31 m2
Sala
15,75 m2
Cozinha
9,90 m2
Circulação
15,90 m2
Terraço
13,83 m2
Saguão
4,00 m2
Área Bruta Privativa | 129,15 m2
Área Dependente | 10,55 m2
864.500,00€
PISO 1 | T5 | 144,20 m2
-
5 Quartos
14,80 m2 | 11,50 m2 | 10, 85 m2 | 9,30 m2 | 8,50 m2
3 Casas de Banho
4,55 m2 | 3,40 m2 | 3,31 m2
Sala
16,20 m2
Cozinha
8,50 m2
Circulação
13,50 m2
Terraço
13,30 m2
Marquise
6,70 m2
Varandas
2,45 m2
Área Bruta Privativa | 144,20 m2
Área Dependente | 15,75 m2
1.069.250,00€
PISO 2 | T5 | 139,90 m2
-
5 Quartos
14,75 m2 | 11,40 m2 | 11, 15 m2 | 8,95 m2 | 8,40 m2
3 Casas de Banho
4,70 m2 | 3,20 m2 | 3,31 m2
Sala
16,15 m2
Cozinha
8,50 m2
Circulação
13,05 m2
Terraço
4,05 m2
Marquise
3,30 m2
Varandas
2,60 m2
Área Bruta Privativa | 139,290 m2
Área Dependente | 6,65 m2
955.500,00€
PISO 3 | T5 | 133,65 m2 (vendido em conjunto com o piso 4)
-
5 Quartos
13,45 m2 | 11,55 m2 | 9,90 m2 | 8,60 m2 | 8,00 m2
3 Casas de Banho
4,70 m2 | 3,40 m2 | 3,31 m2
Sala
16,30 m2
Cozinha
8,40 m2
Circulação
18,35 m2
Terraço
4,10 m2
Marquise
3,25 m2
Varanda
1,70 m2
Área Bruta Privativa | 133,65 m2
Área Dependente | 5,80 m2
1.228.500,00€
*valor de aquisição para o conjunto do piso 3 e piso 4
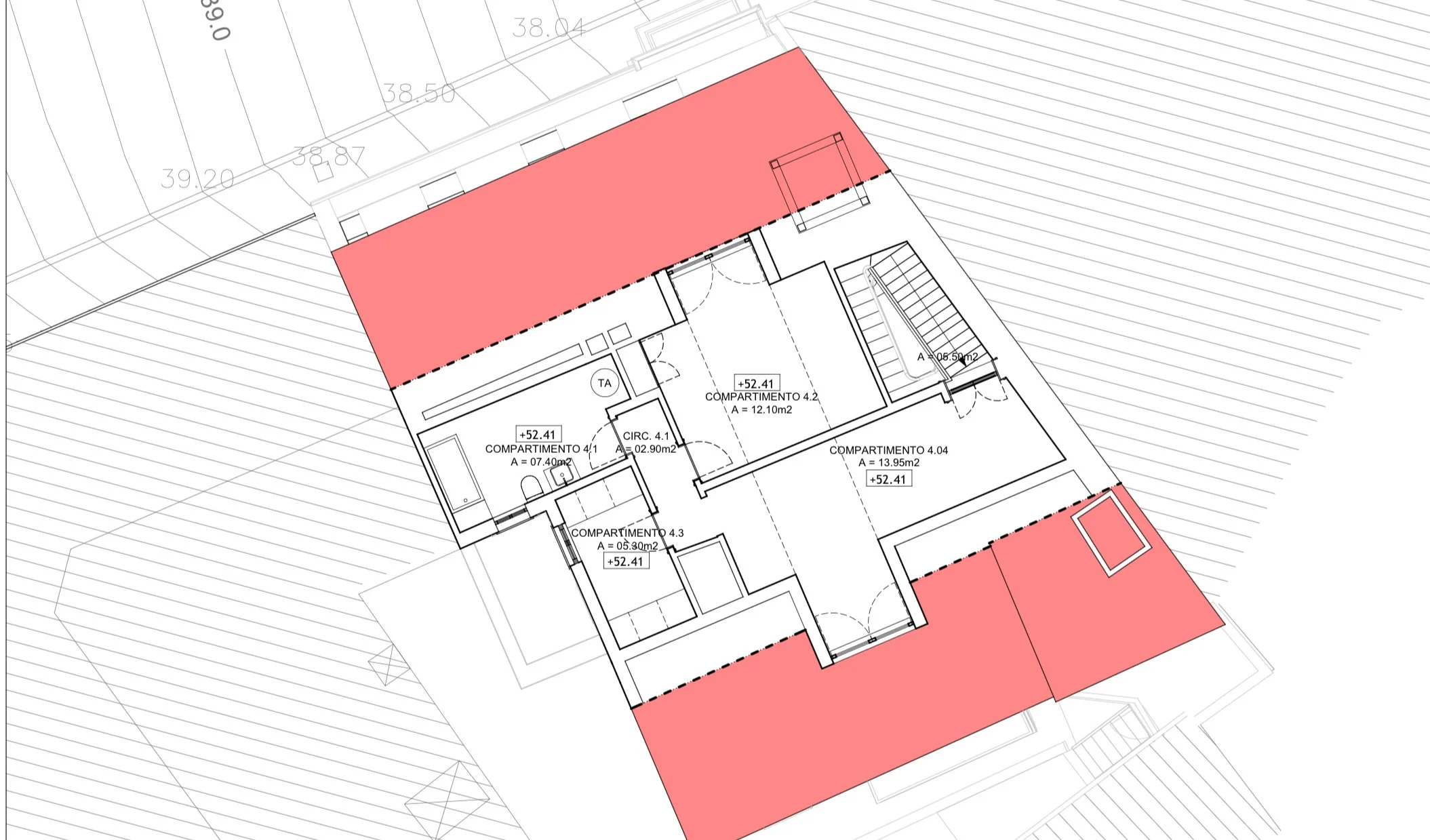
PISO 4 | T1 | 50,80 m2 (vendido em conjunto com o piso 3)
-
1 Quarto
12,10 m2
1 Casa de Banho
7,40 m2
Sala
13,95 m2
Cozinha
5,30 m2
Circulação
2,90 m2
Área Dependente | 50,80 m2
A “AVENIDA”
A Avenida da Liberdade é o centro da capital Portuguesa, Lisboa. Liga a Praça dos Restauradores à Praça do Marquês de Pombal. Com cerca de 90 metros de largura e 1100 metros de comprimento, conta com várias faixas, largos passeios decorados com jardins e a tradicional calçada portuguesa.
SUSTENTABILIDADE
Cabe-nos a nós, enquanto humanos, proteger o ecossistema, os nossos recursos naturais não renováveis e promover uma construção sustentável. Na Liberdade 73 tornámos isso uma questão pessoal e aplicámos o Sistema de Gestão Ambiental (SGA). Aplicámos no nosso projeto, as normas do desempenho energético passivo, redução do consumo de eletricidade, redução do consumo de outras fontes de energia, uso de fontes de energia renováveis, redução do consumo e uso eficiente da água para abastecimento doméstico, melhoramento de acústica, redução de ruído, soluções tecnológicas de otimização de consumos, redução de produção resíduos e a utilização de materiais reutilizáveis.
LOCAIS DE INTERESSE
-
Num raio de poucos quilómetros, encontrará várias escolas e universidades.
Liceu Pedro Nunes | 1600m
Escola Secundária de Camões | 1800m
Escola Secundária Passos Manuel | 1000m
Liceu Francês Charles Lepierre | 2000m
Escola S. Maria Amália Vaz de Carvalho | 1700m
Colégio Luso-Suiço | 1100m
Escola Politécnica de Lisboa | 550m
Escola Superior de Enfermagem | 1000m
Instituto Superior de Ciências da Administração | 1100m
Universidade Aberta | 700m
Nova Medical School | 800m
-
A pé, consegue apanhar o metro que corre por toda a cidade ou vários autocarros em alternativa.
Metro Avenida | 400m
Metro Restauradores | 500m
Estação do Rossio | 600m
Elétrico Principe Real | 350m
Elevador da Glória | 500m
Terminal de Autocarros Restauradores | 450m
-
O edíficio está próximo de 3 hospitais e algumas clínicas privadas.
Hospital de Santo António dos Capuchos | 900m
Hospital Dona Estefânia | 1600m
Hospital Santa Marta | 950m
Clínica Liberty | 280m
Cligenus CMCM | 1000m
-
Pode visitar museus de arte, história natural, ciência ou ainda cultura.
Museu Nacional do Desporto | 400m
Museu da História Natural e da Ciência | 550m
Museu Medeiros e Almeida | 900m
Museu Nacional da Arte Contemporânea | 1200m
Museu da Saúde | 1000m
Museu do Dinheiro | 1300m
Museu Geológico | 1400m
-
Apesar de estar no centro da cidade, está rodeado de espaços verdes.
Praça da Alegria | 120m
Jardim Botânico de Lisboa | 400m
Jardim do Príncipe Real | 300m
Jardins da Avenida da Liberdade | 500m
Parque Eduardo VII | 1300m
-
Na Avenida existem dezenas de marcas mundialmente reconhecidas.
Luis Vuitton | 550m
Gucci | 500m
Prada | 750m
Burberry | 650m
Michael Kors | 350m
Sandro | 280m
Ermenegildo Zegna | 550m
Loewe | 600m
Emporio Armani | 750m
Hugo Boss | 450m
Carolina Herrera | 400m
Chanel Stivali | 350m
Lacoste | 350m
Max Mara | 850m
VISÃO + RENOVAÇÃO
A nossa missão é fazê-lo sorrir
Queremos que consiga juntar amigos e família no mesmo espaço, criar memórias que lhe trazem paz e harmonia. Sem perder funcionalidade, sem perder uma localização premium e com vista a valorizar ao longo do tempo.
Renovação total
Num esforço combinado da Square Arquitectos e da Monark, todo o projeto foi pensado na sua segurança, num comportamento energético eficiente, em espaços funcionais com imensa arrumação, na maximização da iluminação natural e artificial.
Acabamentos
Foram cuidadosamente selecionados os materiais de construção aplicados, com especial atenção à sua duração, eficácia e qualidade. Não podia faltar um design sofisticado, com linhas simples e tradicionais, que possibilitasse a escolha de acabamentos com tons claros ou escuros. Toda a domótica e equipamentos são das melhores marcas do mercado.
Agende a uma visita
Preencha o formulário e agende a sua visita
